Diane Schwenk

9536 S 87th StreetLincoln, NE 68526

2 Total Photos [Click to View All]

Diane Schwenk
NP Dodge Real Estate
REALTOR®
402.708.4112
Connect With a Local Expert
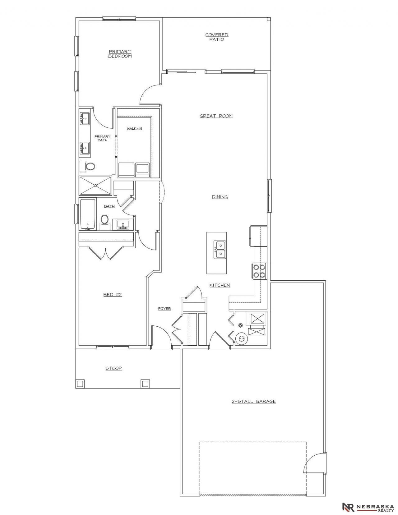
2BEDROOMS 2TOTAL BATHS 1,349SQUARE FEET Active STATUS

Welcome to this beautifully crafted right-sized ranch-style home! Offering nearly 1,350 sq ft of finished living space, this property features an optimal layout designed for modern living. Inside, you'll find 2 bedrooms, 2 bathrooms, and an inviting open-concept living area. The spacious primary suite is complete with an en-suite bathroom featuring a double vanity, onyx shower surround, and a generous walk-in closet. The kitchen impresses with quartz countertops, custom cabinetry, stainless steel appliances, and pantry-perfect for cooking and entertaining. Also features a large 2-car garage. Call for details today!

9536 S 87th Street | MLS# 22533229

This single family home located at 9536 S 87th Street, Lincoln, NE 68526 is currently listed for sale with an asking price of $365,000. This property was built in 2026 and has 2 bedrooms with 1349 sq. ft. S 87th Street is located in the Grandview Estates subdivision within the Lincoln Public Schools school district. Search Grandview Estates real estate on dianeschwenk.npdodge.com today.

READ MOREREAD LESS

Details

Property Type
Residential - Single Family Residence
Days on Site
116
Status
Active
MLS
22533229
Home Style
Ranch
Subdivision
Grandview Estates
County
Lancaster
Garage Spaces
2
Year Built
2026
Original Price
$365,000
DIRECTIONS TO PROPERTY
From 84th and Yankee Hill Rd, head South towards Rokeby Ridge Rd, Turn East on Rokeby Ridge Rd, Turn Left on 88th St and head towards development.

Schools

School District
Lincoln Public Schools
Elementary
Wysong
Middle / Junior
Moore
Senior / High
Standing Bear

Exterior

Lot Dimensions
52 x 120
Garage Type
Attached
Fence
None
Lot Description
Up to 1/4 Acre.

Interior

Primary Bedroom Level
Main
Total SqFt
1,349
Main Floor SqFt
1,349
Laundry
Luxury Vinyl Plank

Dimensions & Layout

Room
Dimensions (FT)
Level
Description
Kitchen
12.5 X 11.6667
Main Floor
Luxury Vinyl Plank
Great Room
16 X 15
Primary Bedroom
12 X 13
Main Floor
Wall/Wall Carpeting
Bedroom 2
10 X 15
Main Floor
Laundry Room
5.2 X 5.2
Main Floor
Luxury Vinyl Plank

Bathrooms

Level
Full
3/4
1/2
Rough-in
Total
Main Floor
Full: 1
3/4: 1
1/2: 0
Rough-in: 0
Total:
All Levels
Total Full: 1
Total 3/4: 1
Total 1/2:
Total Rough-in:
Total:

Utilities

Cooling
Central Air
Heating
Electric, Forced Air
Fuel Type
Electric
Sewer
Public Sewer
Water
Public

Taxes & Fees

Tax Amount
$0
Tax Year
2025
Financing Terms
VA Loan, FHA, Conventional, Cash
HOA Fee
300

Area Information

Lincoln

Lincoln is the capitol city of Nebraska and the state’s second largest city. While Lincoln has a dense suburban feel, Lincoln also has over 100 parks with over 99 miles of interconnecting trails. The downtown area of Lincoln is home to Nebraska’s State Capitol, the University of Nebraska-Lincoln, Historic Haymarket District and several art galleries and museums, performing arts centers, breweries and restaurants. With something for everyone, it’s no wonder Lincoln is frequently listed among the nationally ranked best cities to live in and buyer a house in the United States.

If you are ready to start your home buying or selling journey, browse the latest homes for sale in Lincoln, NE. You can also contact us or visit our local office—we are here to help!

EXPLORE NEIGHBORHOOD

Demographics

Mortgage Calculator

ESTIMATED MONTHLY PRICE: $2,726.73
=
blank Principal Taxes INS / PMI Other Total
Monthly $2,191.70 $127.75 $407.28 $0.00 $2,726.73
Yearly $26,300.40 $1,533.00 $4,887.36 $0.00 $32,720.76
Total $789,012.00 $45,990.00 $99,323.80 $0.00 $934,325.80
Results from this calculator are designed for comparative purposes only, and accuracy is not guaranteed.

We have mortgage solutions for your homeownership aspirations. When you're ready to look or buy, or possibly refinance, I'll put my expertise to work and be with you every step of the journey.

Count on a personalized and seamless experience—all the way to closing. Start the pre-qualification process by using our easy online application!

Start the process!
Loan Officer Image
Stephanie Reinhardt NMLS# 623803 Mortgage Loan Officer

Login to My Homefinder

Pixel

Request Information

Call Us Now: 402.708.4112

Have a question?

Custom Form